Alaina Warner — Other Work

Continuous Pattern Design and Color Pallet

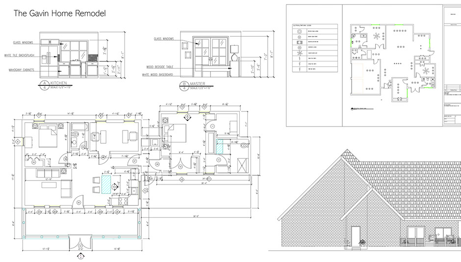
The Gavin Home Remodel

Business Collateral Design

Internship Projects with Mona + Associates Interior Design

©2021 Salem Academy and College | website designed by InfoGraph Creative